Centro de Salud en Son Ferriol
Emplazamiento
Son Ferriol, barriada del levante de Palma, de no muy lejana creación, siempre muy vinculado a las carreteras de salida de Ciutat hacia el centro de Mallorca. Un casco urbano de manzanas cerradas con calles ortogonales de bloques de viviendas o hileras de adosados, donde los edificios públicos deben destacar por su singularidad y disposición.
El solar, en la parte central del núcleo, finaliza un extremo de manzana, con un corte a medianera no ortogonal a las calles, que la da una asimetría seguramente fruto de una antigua traza de la configuración del parcelario agrícola. Se dispone de fachada a tres calles, con la orientación sur de menores dimensiones y las oeste y norte con longitudes similares; el tráfico habitual y la necesidad de tener salida a las vías de comunicación nos llevan a volcar la fachada principal al lado oeste.
Consideramos de cara a la resolución de la edificación, el hecho de ser un núcleo palmesano muy vinculado al entorno natural, con la ortogonalidad siempre presente tanto en texturas como en tonalidades y en la conformación de las celdas del parcelario; la singularidad de la linealidad, en la disposición de visuales lejanas y en la horizontalidad del paisaje, donde cualquier elemento vertical puntea el espacio y posiciona (los molinos de viento, árboles singulares, el campanario,…), confieren una fuerte disposición geométrica al emplazamiento. La poca pendiente del terreno, siempre en dirección mar, entendida como escorrentía de agua de lluvia y las brisas marinas del embate veraniego, en sentido contrario, complementan con su suave presencia la lectura del lugar.
Necesidades
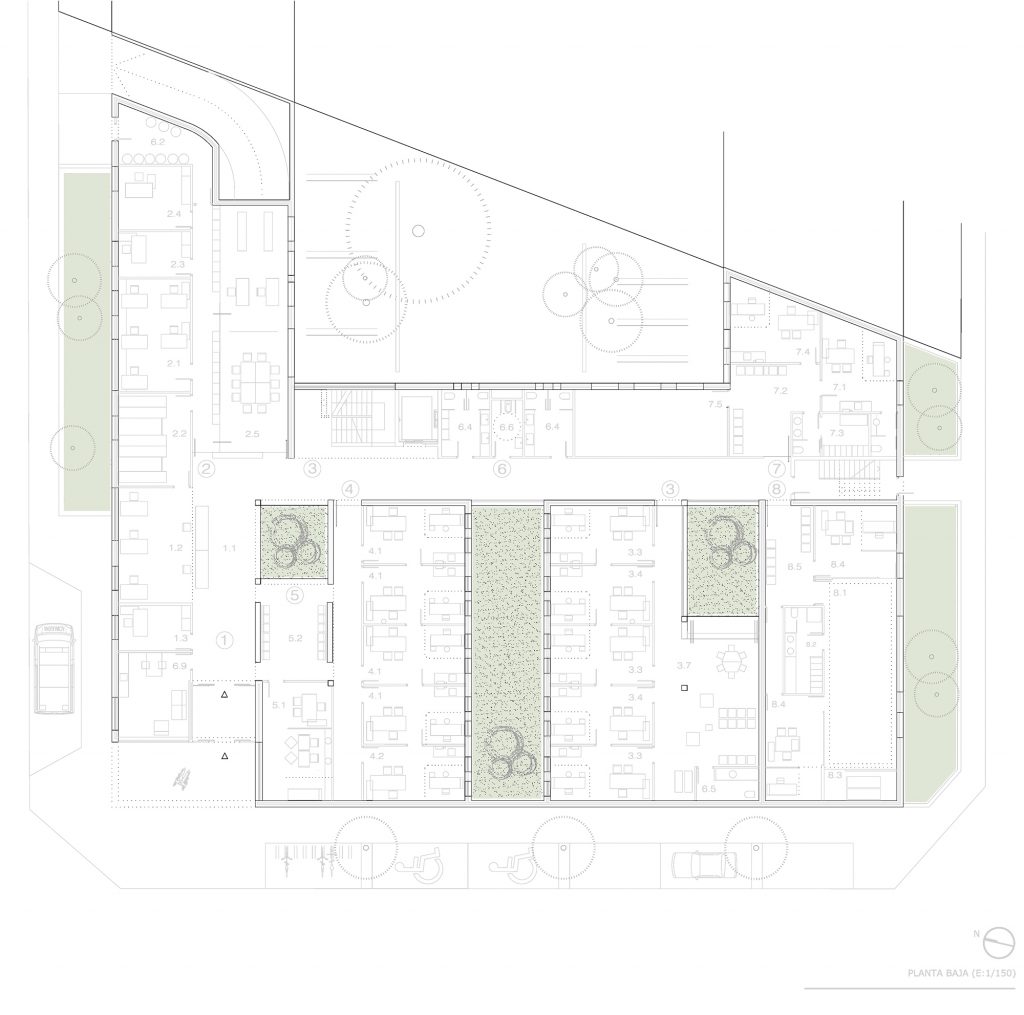
Se plantea dar respuesta volumétrica a las previsiones de la normativa municipal, con la solución de manzana cerrada entendida como edificación con alineación a vial; se entiende el retranqueo a la calle como espacio público (zonas ajardinadas y zona de aparcamiento en superficie). Se resuelve el centro de salud en dos plantas sobre rasante, con acceso a cota de calle, donde se distribuyen las áreas solicitadas, quedando el espacio no edificable del patio de manzana como zona ajardinada y drenante, y una planta sótano destinada principalmente a aparcamiento e instalaciones con rampa de acceso por el noreste.
Resolución con el entorno
La solución es consecuencia de la lectura realizada; se da continuidad a la volumetría propia de la manzana, con fachadas cerradas en la alineación prevista, con diferenciación de las que se encuentran en secuencia de les viviendas existentes, a norte y sur y la que es la principal o de acceso, en el lado oeste. La imagen de rotundidad y singularidad definen su función pública y las soluciones habituales y comunes la integran en el entorno donde se encuentra. Las soluciones con obra vista de diferentes aparejos de composición y con remarcado de las juntas horizontales y sus aberturas, de proporción vertical, responden al carácter agrario que se respira todavía hoy en Son Ferriol. Las zonas de vegetación, complementan esta idea; la definición de rectángulos y la relación interior con exterior remarcan el fuerte carácter geométrico del parcelario de zonas de regadío.
Adecuación funcional
Las soluciones tomadas intentan reducir las circulaciones optimizando la funcionalidad. Se disponen patios en la fachada sur, en dirección norte, que se relacionan con el que queda del interior de manzana, para mejora de las condiciones de iluminación, asoleo y ventilación. El acceso en la esquina noroeste, de especial singularidad estructural y porche de protección, permite una idónea resolución del programa, con los núcleos entre plantes y zonas de servicios en la fachada interior al patio y una distribución en peine a partir del pasillo principal, con alas en dirección norte-sur.
Características del edificio
Se valora que los espacios interiores disfruten de visuales con buena iluminación y ventilación natural, donde las circulaciones sean claras y que de manera sencilla se puedan mover por el interior. Los patios lo complementan y permiten la percepción del entorno exterior. La estructura de hormigón armado, de sencillez probada y máximas prestaciones, se desplaza en todo lo posible a las zonas perimetrales donde coincide en fachada con los muros de cerramiento, reduciendo puentes térmicos con el aislamiento por el exterior y liberando las zonas interiores para mayor flexibilidad y reformas posteriores. Los acabados se eligen en función de la máxima durabilidad con un mantenimiento habitual.
Los exteriores se concretan con el uso de pocos materiales, que unifiquen el conjunto y de envejecimiento digno y libre de importantes reparaciones o sustituciones. Los paramentos de obra vista de bloque prefabricado con sus composiciones de aparejos, las carpinterías de aluminio y los acristalamientos, así como les cubiertas planas no transitables con acabados de grava, a diferentes alturas para permitir una ocultación de les zonas de maquinarias y placas solares conformaran la envolvente del edificio.
La propuesta aprovecha las condiciones del solar para disponer de ventilación cruzada, con aberturas a la dirección de les brisas del embate y con la dualidad de patios que permiten la entrada de la luz solar al interior del edificio y asoleo en épocas frías. El agua de lluvia se aprovecha para riego de zonas ajardinadas y la vegetación y arbolados mediterráneos, serán adaptados a la climatología local y con necesidades hídricas reducidas.




